Kocmyrzów-Luborzyca, Krzysztoforzyce

Dom na sprzedaż

4 pokoje 157,00 m2 2 350,32 zł/m2

369 000 zł

MARIUSZ CIASTOŃ

Manager

Opis nieruchomości

Do sprzedania DOM W ZABUDOWIE BLIŹNIACZEJ w miejscowości Krzysztoforzyce gmina Kocmyrzów-Luborzyca ok. 1,5 km od granicy Krakowa.
Powierzchnia nieruchomości wynosi 148m2, znajduje się na działce o powierzchni 3,67a.
Cena 369 000 zł.

Domy sprzedawane są w stanie zamkniętym (z wykonaną elewacją i zamontowaną stolarką zewnętrzną).
Wyposażone są w przyłącza: gazowe, wodociągowe, elektryczne oraz kanalizacyjne (do szamba szczelnego o poj. V=9,6 m3). Teren posesji został ogrodzony, wykonano podjazdy i dojścia z kostki brukowej.
W pobliżu inwestycji znajduje się pętla autobusu MPK.

Budynki wybudowane w technologii tradycyjnej (murowane). Ściany nośne i zewnętrzne wzniesione z pustaka POROTHERM gr. 25 cm, docieplone styropianem gr. 12 cm, kryte tynkiem silikatowo-silikonowym.
Więźba dachowa drewniana, kryta dachówką betonową firmy EURONIT (30 lat gwarancji). Stropy, schody i nadproża - żelbetowe, wylewane na mokro.
Stolarka okienna PCV jednostronny kolor, drzwi antywłamaniowe GERDA, okna dachowe FAKRO. Podjazdy, dojścia i opaska wokół budynku wykonane z kostki brukowej Chyżbet. Wokół budynków oraz od strony drogi wykonano drenaż opaskowy. Każdy segment posiada wbudowany garaż oraz własne miejsce postojowe na terenie posesji.

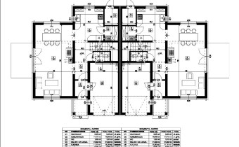
Rozkład pomieszczeń:
PARTER: - garaż - wiatrołap - hall z klatką schodową - wc - salon - kuchnia - spiżarka - pomieszczenie gospodarcze
PODDASZE: - przedpokój - 3 sypialnie - garderoba - łazienka - pralnia+kotłownia.

Kupujący otrzymuje fakturę VAT w związku z czym nie ponosi dodatkowych kosztów (2% podatku PCC).
Naszym klientom oferujemy pomoc w uzyskaniu kredytu oraz w sfinalizowaniu inwestycji.
Osoby poszukujące niedrogiego domu w bezpośrednim sąsiedztwie Krakowa zapraszamy do oglądnięcia prezentowanych budynków.

Kontakt w sprawie oferty:
Marta Skimina, tel.  690 999 796

Więcej ofert na www.kebec.pl

Nota prawna

Opis oferty zawarty na stronie internetowej sporządzany jest na podstawie oględzin nieruchomości oraz informacji uzyskanych od właściciela, może podlegać aktualizacji i nie stanowi oferty określonej w art. 66 i następnych K.C.

Szczegóły

Symbol oferty KBC-DS-579
Powierzchnia 157,00 m²
Powierzchnia użytkowa 148,00 m²
Powierzchnia działki 3 m²
Liczba pokoi 4
Rodzaj domu bliźniak
Technologia budowlana pustak
Liczba pięter w budynku 2
Garaż w budynku
Stan prawny Wlasnosc
Okna nowe PCV
Instalacje nowe
Balkon duży
Liczba balkonów 1
Pokrycie dachu dachówka betonowa
Stan budynku do wykończenia
Ogrodzenie działki ogrodzona
Rok budowy 2011
Gaz jest
Woda jest
Dojazd asfalt
Otoczenie działki zabudowane
Prąd jest
Kanalizacja szambo

Pomieszczenia

Powierzchnia pokoi 31,92; 15,65; 12,41; 12,41 m2
Podłogi pokoi wylewka
Typ kuchni oddzielna
Rodzaj kuchni jasna z oknem
Powierzchnia kuchni 11,3 m2
Podłoga kuchni wylewka
Typ łazienki nowa
Liczba łazienek 1
Powierzchnia łazienki 9,13 m2
Glazura łazienki bez glazury
Podłoga łazienki wylewka
Wyposażenie łazienki wanna
Liczba WC 1
Powierzchnia WC 1,32 m2
Glazura WC bez glazury
Podłoga WC wylewka
Liczba przedpokoi 2
Powierzchnia przedpokoi 20,57 m2
Podłoga przedpokoi wylewka

Podobne oferty

Dom na sprzedaż - Kocmyrzów-Luborzyca, Krzysztoforzyce
dom na sprzedaż - Kocmyrzów-Luborzyca, Krzysztoforzyce

KBC-DS-581

Kocmyrzów-Luborzyca, Krzysztoforzyce
dom na sprzedaż

3 pokoje 80,00 m²

309 000
3 862,50 zł/m2
Dodaj
do notatnika
PLN
PLN
PLN
PLN
PLN
PLN
PLN
%
PLN
PLN
PLN

PLN

Dane:

PLN
%

Wynik:

PLN
pierwsza rata
ostatnia rata

Napisz do nas

Proszę wypełnić to pole
Proszę wypełnić to pole
Proszę wypełnić to pole
Proszę wypełnić to pole
Trwa wysyłanie...

Ta strona wykorzystuje pliki cookies w celach statystycznych oraz w celu dostosowania naszych serwisów do indywidualnych potrzeb klientów. Zmiany ustawień dotyczących plików cookie można dokonać w dowolnej chwili modyfikując ustawienia przeglądarki. Korzystanie z tej strony bez zmian ustawień dotyczących cookies oznacza, że będą one zapisane w pamięci urządzenia.

rozumiem