Opis nieruchomości
DO WYNAJĘCIA atrakcyjny LOKAL USŁUGOWO-HANDLOWY w budynku z 2001 roku położony na Ruczaju - okolice ulic Torfowej, Szuwarowej.
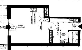
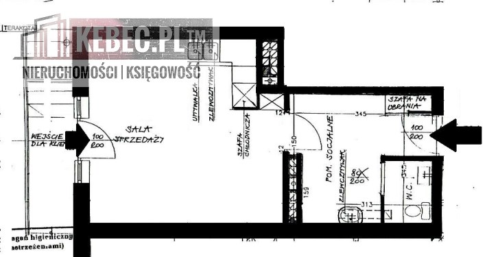
DWA NIEZALEŻNE WEJŚCIA DO LOKALU. PARTER.
Czynsz najmu wynosi 1.789,00 zł netto; 2.200,00 zł brutto.
Lokal usytuowany na PARTERZE o powierzchni 30,70 m2 składa się z ustawnego przedpokoju nadającego się na np. zaplecze, otwartego pomieszczenia z dużą witryną i osobnym wejściem z ulicy oraz toalety (WC).
Na podłogach we wszystkich pomieszczeniach położona została terakota. Na ścianach flizy/glazura.
Lokal posiada ROLETY ANTYWŁAMANIOWE w oknach oraz drzwiach wejściowych.
ZAŁOŻONA INSTALACJA ALARMOWA.
Wysokość kondygnacji ok. 2,50 m.
CENTRALNE ogrzewanie z lokalnej kotłowni osiedlowej.
Wejście do lokalu przystosowane dla osób niepełnosprawnych.
W lokalu była prowadzona działalność cukiernicza. Odbiór Sanepidu.
W KWOCIE CZYNSZU 1,789 ZŁ NETTO WLICZONY JEST CZYNSZ ADMINISTRACYJNY do wspólnoty mieszkaniowej - w tym opłaty za wywóz śmieci, fundusz remontowy, zimna woda i ścieki. Opomiarowane są CO, prąd i ciepła woda.
W LOKALU NIE MA GAZU.
Wymagana kaucja - jednomiesięczny czynsz.
Gorąco zachęcam do oglądania!
Kontakt w sprawie oferty:
TEL. 605 785 757
e-mail: biuro@kebec.pl
WIĘCEJ OFERT NA kebec.pl
SPRAWDŻ!
Nota prawna
Opis oferty zawarty na stronie internetowej sporządzany jest na podstawie oględzin nieruchomości oraz informacji uzyskanych od właściciela, może podlegać aktualizacji i nie stanowi oferty określonej w art. 66 i następnych K.C.Szczegóły



