Opis nieruchomości
USTAWNE MIESZKANIE 3-POKOJOWE z BALKONEM o powierzchni 60m2 położone na IV piętrze czteropiętrowego budynku BEZ WINDY. Budynek z 1978r. Lokalizacja PRĄDNIK BIAŁY, ulica Szopkarzy, okolice ul. Nad Sudołem. W sąsiedztwie powstaje linia tramwajowa Krowodrza Górka - Górka Narodowa.
Cena 479.000 zł.
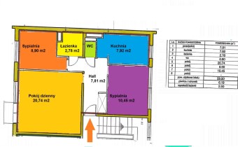
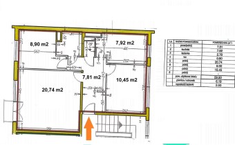
Mieszkanie usytuowane w budynku cztero-piętrowym na ostatnim piętrze składa sie z:
- dużego pokoju dziennego z wyjściem na balkon, pokój w układzie kwadratu, pow. ok. 20m2, ekspozycja okien południowa,
- sypialni o pow. ok. 9 m2, ekspozycja południowa,
- sypialni o pow. ok. 11 m2, ekspozycja północna,
- kuchni w układzie prostokąta, pow. ok. 8 m2 - eskpozycja północna,
- łazienki z wanną,
- oddzielnego WC,
- przedpokoju w wnęką na szafę garderobianą.
MIESZKANIE DO REMONTU. FUNKCJONALNY rozkład, dobrze doświetlone światłem naturalnym, ciepłe. Możliwość przearanżowania mieszkania na lokal 4-pokojowy.
Stolarka okienna stara, drewniana. Ekspozycja okien południowo-północna.
CENTRALNE OGRZEWANIE z sieci miejskiej (MPEC). Ciepła woda z piecyka gazowego.
Na podłogach w pokojach, przedpokoju, kuchni wykładzina. W łazience, WC położona terakota.
Do mieszkania przynależy piwnica o pow. ok. 6m2.
MIESIĘCZNY CZYNSZ zawierający opłatę za centralne ogrzewanie, wywóz nieczystości, fudusz remontowy oraz zaliczkowe opłaty za wodę (opomiarowanie) wynosi 440zł. Do podanej kwoty należy doliczyć opłatę za gaz (kuchenka) oraz energię elektryczną wg zużycia.
Elewacja budynku została ODNOWIONA/ocieplona, klatki schodowe zadbane, malowane dwa lata temu.
Założone NOWE DOMOFONY. Do klatek schodowych dobudowane wiatrołapy.
Między blokami pasy zieleni. Pełna infrastruktura osiedla tj. szkoła, przedszkole, apteki, bank; w bezpośrednim sąsiedztwie placówki medyczne oraz usługi/handel. W pobliżu markety Biedronka, Lidl, McDonalds. Pętla tramwajowa i autobusowa w odległości ok. 600 m. Około 200 m. od budynku przystank autobusowy linii 144 i 154.
Zapraszamy do kontaktu.
Osoba prowadząca ofertę:
tel. 605 785 757
biuro@kebec.pl
WIĘCEJ OFERTA NA www.kebec.pl
Nota prawna
Opis oferty zawarty na stronie internetowej sporządzany jest na podstawie oględzin nieruchomości oraz informacji uzyskanych od właściciela, może podlegać aktualizacji i nie stanowi oferty określonej w art. 66 i następnych K.C.Szczegóły



